Diesel schaarhoogwerker

275 SDLR

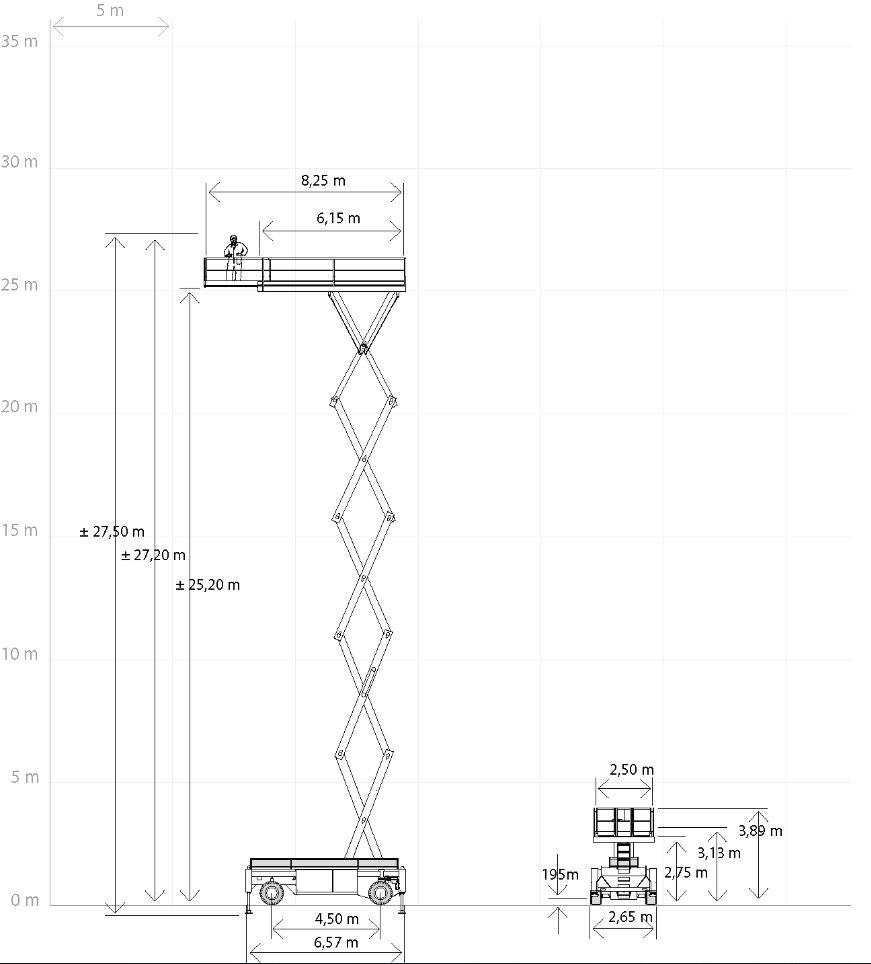
Type: 275 SDLR
Werkhoogte: 27,5 m
Aandrijving: Diesel
Eigen gewicht: 29.910 kg
Toepassing: Buiten
Hefvermogen: 1.000 kg
Platform: 6.15 x 2.5 m
Transport afmetingen: 6.57 x 2.65 x 3.13 m

Toepassingen & omschrijving

De 275 SDLR diesel schaarhoogwerker heeft een werkhoogte van 27,50 meter, de machine weegt 21.910 kg en is geschikt voor buiten. De hoogwerker heeft een omvang van 6,57 x 2,65 meter. Hij beschikt over ruwterrein wielen met vierwielaandrijving en nivelleerstempels. Tevens heeft deze hoogwerker aan één zijdes een uitschuifbaar werkplatform waarmee de werkbak met 210 cm verlengd kan worden. Het maximale hefvermogen is 1.000 kg.

>> 8,25 m brede werkruimte door uitrolbaar platform
>> Optionele automatische stempels voor sneller opstellen

Diagram

Direct regelen:

Om bovenstaande machine direct te bestellen, een offerte aan te vragen of een vraag te stellen, hebben we nog een aantal gegevens van je nodig. Vul deze hieronder zo compleet mogelijk in. Hierna nemen we contact met je op. Voor een spoed bestelling: neem contact met ons op.

Maak een keuze:

Machine huren: